top of page


SHOP★1384
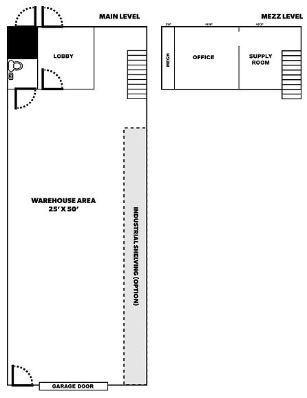
Space Plan Highlights:
★ 1,775 SF (25' x 60')
- Includes 275 SF Mezzanine/Storage
★ 200 Amp Single-Phase
★ 12' W x 14' H Electric Overhead Door
★ Ultra-Bright, High-Bay, LED Shop Lights
★ Bathroom
★ Water & Floor Drain
★ 80,000 BTU Reznor Gas Heater




SITE PLAN
= SHOP LOCATION
Call or Text for Pricing 952.222.2500

bottom of page













